D1

Артикул: D1
  • Площадь дома: 112.18 м2

Цена проекта: по запросу

Стоимость строительства ~ 143590.4 руб.

Сроки подготовки:

D1

D1

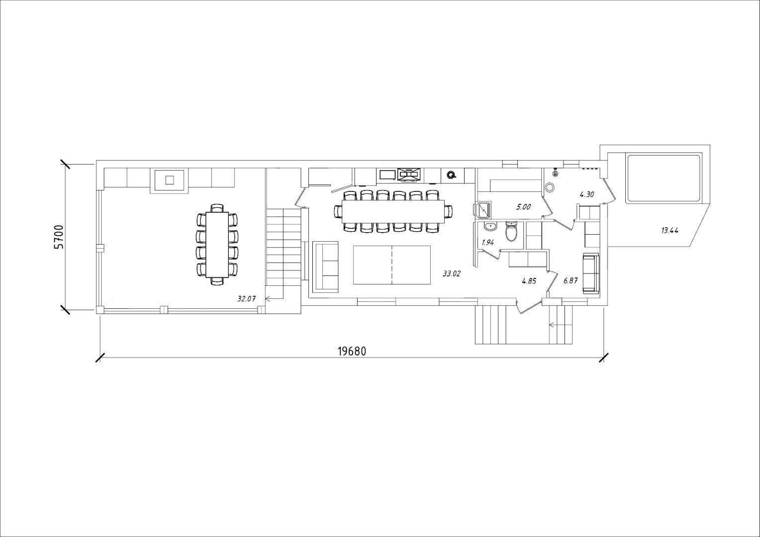
Планы

Характеристики

Характеристики
Тип фундамента ленточный монолитный
Тип перекрытия монолитное
Конструкция стен газобетон, керамические блоки, пеноблоки, пенобетон
Кровля цементно-песчаная черепица, металлочерепица, керамическая черепица

Описание проекта

D1 – это современная баня с уютным и функциональным пространством для отдыха.

Проект D1 идеально подходит для тех, кто хочет построить компактную и комфортную баню, которая станет гармоничным дополнением к загородному дому или дачному участку. В планировке учтены все необходимые зоны – парная, душевая и комната отдыха, что обеспечивает удобство использования . Стильный внешний вид и продуманное внутреннее пространство делают баню D1 отличным решением для тех, кто ценит комфорт и традиции в современном исполнении.

Хотите заказать проект?

Оставляйте свои контакты и мы свяжемся с Вами в ближайшее время

Оставляйте свои контакты и мы свяжемся с Вами в ближайшее время